Cazan pe combustibil solid KRONAS PROM, 80kw
In stoc
Producator
KRONAS
Suprafata incalzita, m²
800
Putere, kW
80
Incarcarea combustibilului
manuala
Randament, %
85
Masa, kg
880
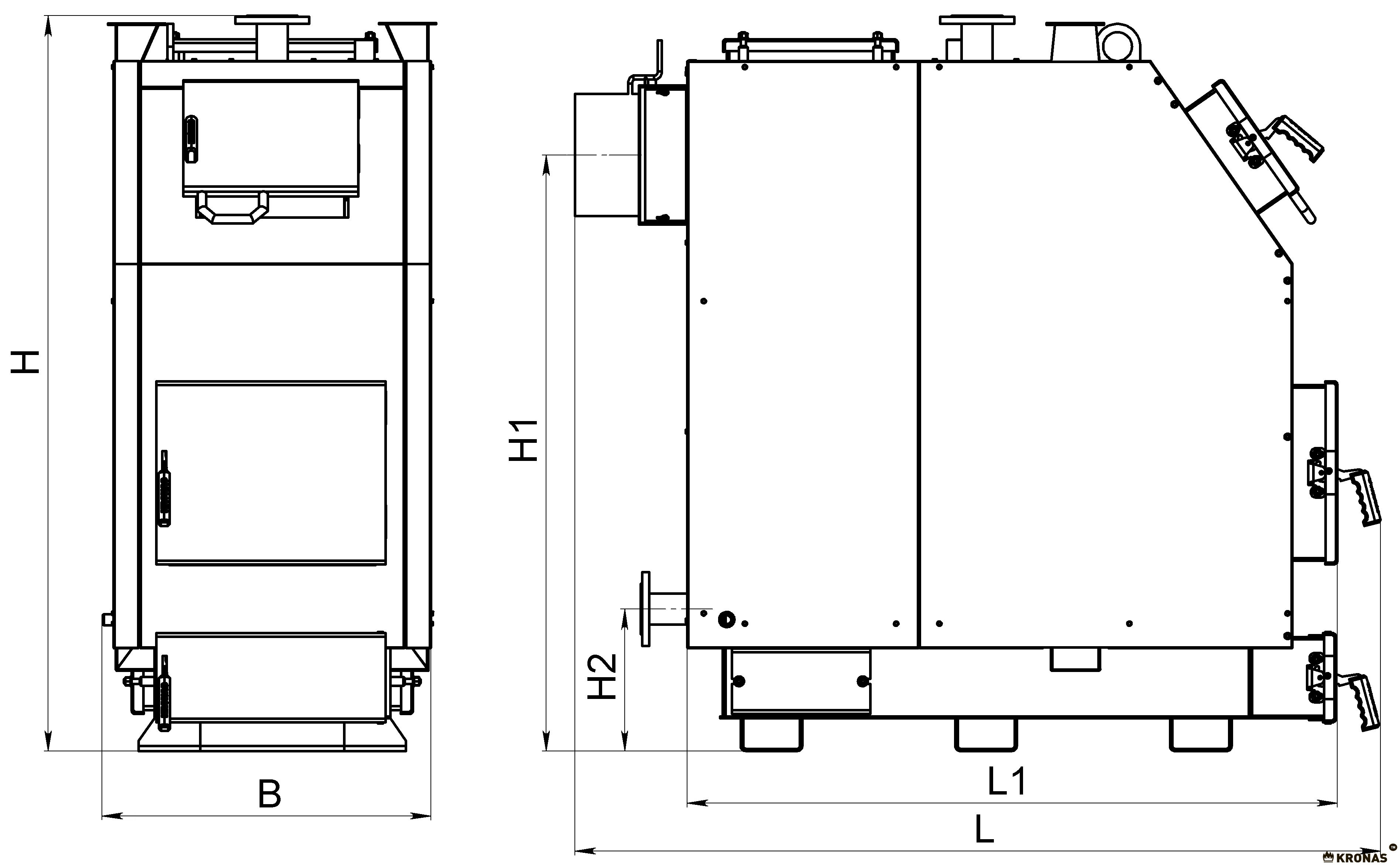
Dimensiuni (L x I x A), mm
775x1715x1890
Material schimbator de caldura
Otel
Grosimea metalului, mm
6
Tip de combustibil
lemn de foc, cărbune, brichete
Diametrul cosului de fum, mm
250
Turbina
da
Automatizare
da
Garantie, luni
36










